广州品茶嫩茶,深圳龙岗区大圈品茶工作室,上海大圈品茶工作室怎么预约,全国高端商务模特经纪公司

松夏减震器,安全又耐用

咨询电话:

17317317121(微信同号)


弹簧减震器

V型吊式减震器产品

V型吊式减震器产品

  V型吊式减震器产品介绍:

  1、悬吊框上下连接面采用NR减振橡胶设计,能更有效隔绝因振动引起的低频噪音。

  2、悬吊框及弹簧外观采取喷塑防锈处理,以延长使用寿命。

  3、弹簧采用低频率值设计,防振效果好。

  V型吊式减震器产品数据表:

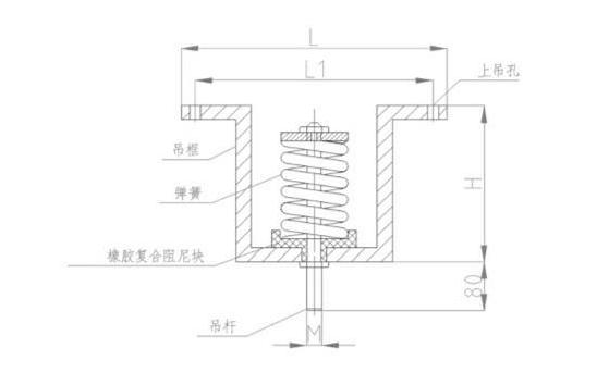
V型吊式减震器结构图
V型吊式减震器产品参数图
 

  主要用途:

  1、吊挂式空调箱、排送风机。

  2、各类风管吊管、水管吊管。

  3、风机盘管。

 

  4、KTV吊顶等。

您可能对以下内容感兴趣


减震知识

使用安装

案例展示